加入收藏

公司简介
公司招聘

ENGLISH

 

首 页   公司简介   公司动态   产品介绍   修理厂设计   整厂报价   整厂出口   下载   职院校建设   联系我们
2023年一站式修理厂整厂配套新思路 免费提供修理工招聘|应聘|发布信息|修理厂出租转让|我的空间|规章制度
2023年最新样册下载
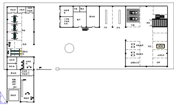
厂房多,如何设计

你的网页位置:首  页——厂房规划--2009-2

厂房多如何设计

一:规划前场地情况
     厂房是现成的,但就是分为几处,而且不是有规则的,如何设计,这样只有把单个功能放在一个厂房里了,如分为机修车间,钣金车间,油漆车间了。
请看设计图

分解如下

接待机修车间

钣金油漆车间

修理大车车间

设备报价可参考二类修理厂设备中级报价:21.3万 


 |公司荣誉|成功案例|公司招聘|维修服务|合同下载|中国举升机网 |
上海市嘉定区漳翔路1055号往里100m衡臣  销售电话:021-59159353 传真:021-59156097,QQ 386058368  MSN:WEB@EQIBAO.COM
Copyright © 2003–2015 中国易汽保商务网  版权所有
沪公网安备 31011402003356号